공공분양
인천계양 A2
709호
교통, 교육, 생활, 자연, 비즈니스
모두 다 갖춘 名品 자족신도시

보행특화도시
지구 내 어디서나 쉽게 접근할 수 있는 5개의 걷고 싶은 선형공원을 계획하여 5분내 생활에 필요한 모든 일상활동이 이루어지는 사람 중심의 보행특화도시 입니다.
창의혁신도시
청년층의 니즈를 반영하여 주거·배움·일·놀이가 융합된 공간 조성을 통해 청년층이 주도하는 창의혁신도시 입니다.
돌봄교육도시
선형공원 중심으로 유치원, 학교, 커뮤니티시설 및 공동주택을 계획하여 안전하고 재미있는 통학로 등 아이들을 감싸 안는 돌봄교육도시 입니다.
미래지향도시
스마트 기술로 만들어내는 미래지향도시를 주제로 디지털 트윈기술을 활용한 도시관리를 하고 UAM, S-BRT등 친환경 미래교통수단을 도입하여 탄소중립을지향하는 스마트시티 입니다.
- 상기 지역조감도는 입주자의 이해를 돕기 위한 개략도이므로 실제와 차이가 있을 수 있습니다.
- 상기 계획은 관계기관의 인·허가 변경 및 사업여건 등에 따라 조정될 수 있습니다.
서울과 수도권 어디든지 빠르게 연결되는
사통팔달의 쾌속교통

- 상기 교통망도는 입주자의 이해를 돕기 위한 개략도이므로 실제와 차이가 있을 수 있습니다.
- 상기 계획은 관계기관의 인·허가 변경 및 사업여건 등에 따라 조정될 수 있습니다.
생활을 풍요롭게 해주는
다양하고 편리한 생활인프라

- 지구계
- 주상복합
- 단독주택
- 근린업무복합시설
- 공동주택
- 자족시설
- 근린생활시설
- 업무시설
- 상업시설
- 유보지
- 공원
- 광장
- 녹지
- 교육시설
- 하천
- 커뮤니티시설
- 공공공지
- 종교시설
- 보행자전용도로
- 위험물저장 및 처리시설
- 전기공급설비
- 주차장
- 자동차정류장
- 도로
- 상기 토지이용계획도는 사업추진과정에서 일부 조정될 수 있습니다.
여유로운 삶과 함께하는즐거움
입주민 맞춤형 편의시설로 한층 더 편안한 단지

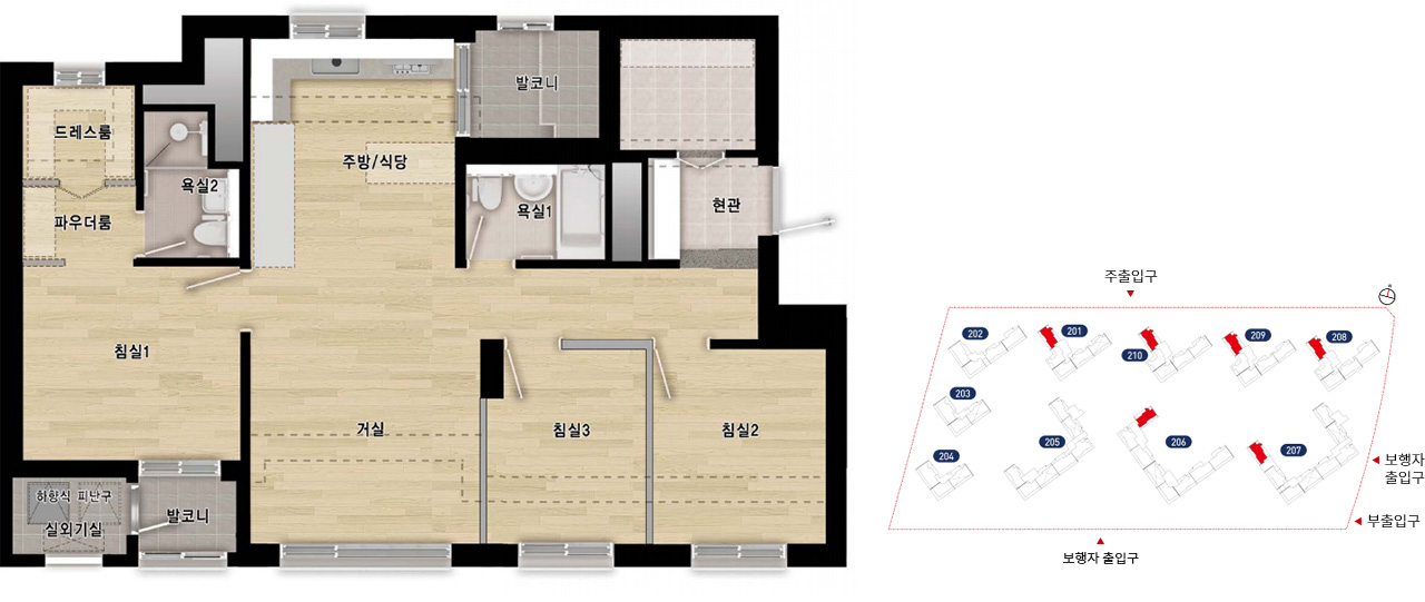
총 747세대 중
사전청약
709세대
금회공급 512세대
금회공급 169세대
금회공급 28세대
※ 사전청약 당첨 후 본청약시 동·호 배정은 본 청약 당첨자와 함께 주택청약업무수행기관 (신혼희망타운의 경우 LH공사)의 컴퓨터 프로그램에 의해 무작위 추첨하여 타입이 결정됩니다.
- 상기 단지배치도는 입주자의 이해를 돕기 위한 개략도이므로 실제와 차이가 있을 수 있습니다.
- 상기 계획은 관계기관의 인·허가 변경 및 사업여건 등에 따라 조정될 수 있습니다.
59A

59B

59C

59D

59E

74A

84A

- 상기 평면도는 사전청약 신청자의 이해를 돕기위한 개략도이며, 전제 평면 중 전용면적 대표평면(확장형)을 게재한 것입니다.
- 상기 평면도의 평면구성, 옵션적용, 실별확장 여부는 입주예정자 선호도조사 등 설계 진행 과정에서 변경될 수 있습니다.
남양주진접2 A1
873호
빠른 교통과 편리한 생활
싱그러운 자연이 있는 여유로움

더 특별한 교통
수도권제1순환고속도로, 세종포천고속도로(구리-포천)등 광역교통망과 4호선 연장 신설역(풍양역) 예정으로
서울과 수도권 및 인근 도시로의 접근성이 우수합니다.
풍요롭고 쾌적한 특급생활
별내신도시, 3기신도시 왕숙지구 생활권 확보로 주거가치와 미래가치를 동시에 누리며 풍부하고 편리한 도시 인프라를 누리는 최고의 입지를 갖추었습니다.
녹지로 가득한 쾌적자연
수락산과 불암산, 왕숙천의 쾌적함과 자연의 싱그러움을 느낄 수 있는 청정자연의 풍부한 녹지환경으로 삶의 여유를 한껏 누리실 수 있습니다.
- 상기 지역조감도는 입주자의 이해를 돕기 위한 개략도이므로 실제와 차이가 있을 수 있습니다.
- 상기 계획은 관계기관의 인·허가 변경 및 사업여건 등에 따라 조정될 수 있습니다.
서울로의 빠른 접근성! 더 촘촘해지는 교통망으로
기대되는 미래생활

- 상기 교통망도는 입주자의 이해를 돕기 위한 개략도이므로 실제와 차이가 있을 수 있습니다.
- 상기 계획은 관계기관의 인·허가 변경 및 사업여건 등에 따라 조정될 수 있습니다.
생활을 풍요롭게 해주는
도시와 자연의 조화

- 상기 토지이용계획도는 사업추진과정에서 일부 조정될 수 있습니다.
자연 그대로를 담은 친환경 조경!
사람과 자연이 모두 행복한 힐링라이프가 시작됩니다.

총 920세대 중
사전청약
873세대
금회공급 341세대
금회공급 532세대
※ 사전청약 당첨 후 본청약시 동·호 배정은 본 청약 당첨자와 함께 주택청약업무수행기관 (신혼희망타운의 경우 LH공사)의 컴퓨터 프로그램에 의해 무작위 추첨하여 타입이 결정됩니다.
- 상기 단지배치도는 입주자의 이해를 돕기 위한 개략도이므로 실제와 차이가 있을 수 있습니다.
- 상기 계획은 관계기관의 인·허가 변경 및 사업여건 등에 따라 조정될 수 있습니다.
51A

51A1

59A

- 상기 평면도는 사전청약 신청자의 이해를 돕기위한 개략도이며, 전제 평면 중 전용면적 대표평면(확장형)을 게재한 것입니다.
- 상기 평면도의 평면구성, 옵션적용, 실별확장 여부는 입주예정자 선호도조사 등 설계 진행 과정에서 변경될 수 있습니다.
남양주진접2 B1
223호
빠른 교통과 편리한 생활
싱그러운 자연이 있는 여유로움

더 특별한 교통
수도권제1순환고속도로, 세종포천고속도로(구리-포천)등 광역교통망과 4호선 연장 신설역(풍양역) 예정으로 서울과 수도권 및 인근 도시로의 접근성이 우수합니다.
풍요롭고 쾌적한 특급생활
별내신도시, 3기신도시 왕숙지구 생활권 확보로 주거가치와 미래가치를 동시에 누리며 풍부하고 편리한 도시 인프라를 누리는 최고의 입지를 갖추었습니다.
녹지로 가득한 쾌적자연
수락산과 불암산, 왕숙천의 쾌적함과 자연의 싱그러움을 느낄 수 있는 청정자연의 풍부한 녹지환경으로 삶의 여유를 한껏 누리실 수 있습니다.
- 상기 지역조감도는 입주자의 이해를 돕기 위한 개략도이므로 실제와 차이가 있을 수 있습니다.
- 상기 계획은 관계기관의 인·허가 변경 및 사업여건 등에 따라 조정될 수 있습니다.
서울로의 빠른 접근성! 더 촘촘해지는 교통망으로
기대되는 미래생활

- 상기 교통망도는 입주자의 이해를 돕기 위한 개략도이므로 실제와 차이가 있을 수 있습니다.
- 상기 계획은 관계기관의 인·허가 변경 및 사업여건 등에 따라 조정될 수 있습니다.
생활을 풍요롭게 해주는
도시와 자연의 조화

- 상기 토지이용계획도는 사업추진과정에서 일부 조정될 수 있습니다.
여유로운 생활을 누리는 웰빙커뮤니티
생활은 더 여유롭고 가치는 더 높아집니다

총 236세대 중
사전청약
223세대
금회공급 178세대
금회공급 45세대
※ 사전청약 당첨 후 본청약시 동·호 배정은 본 청약 당첨자와 함께 주택청약업무수행기관 (신혼희망타운의 경우 LH공사)의 컴퓨터 프로그램에 의해 무작위 추첨하여 타입이 결정됩니다.
- 단지 남측 공공공지 내 지면으로부터 약 20m 높이(아파트 7-8층 높이)로 전철이 지나가므로 환경 저해(경관, 소음 등)가 발생할 수 있습니다.
- 상기 단지배치도는 입주자의 이해를 돕기 위한 개략도이므로 실제와 차이가 있을 수 있습니다.
- 상기 계획은 관계기관의 인·허가 변경 및 사업여건 등에 따라 조정될 수 있습니다.
74A

74B

84A

- 상기 평면도는 사전청약 신청자의 이해를 돕기위한 개략도이며, 전제 평면 중 전용면적 대표평면(확장형)을 게재한 것입니다.
- 상기 평면도의 평면구성, 옵션적용, 실별확장 여부는 입주예정자 선호도조사 등 설계 진행 과정에서 변경될 수 있습니다.
성남복정1 A1
583호
서울 가까이 생활 가까이-
송파와 위례 바로 옆에서 누리는 고품격 생활

빠르게 누리는 강남과 서울
8호선 남위례역(신설)예정으로 편리하게 대중교통 이용이 가능하며 수도권제1순환고속도로, 분당-수서간도시고속화도로 등 광역 교통망으로 전국 어디든 빠르게 연결됩니다.
한걸음에 누리는 특급생활
위례 스타필드시티, 트랜짓몰, 가든파이브, 가락시장, 롯데월드몰, 올림픽공원 등
다양하고 편리한 쇼핑ㆍ문화 인프라를 가까이에서 향유할 수 있는 최고 수준의 생활환경
도시속 친환경 생태도시
남한산성 도립공원, 영장산, 영장근린공원 녹지 등 쾌적한 자연환경을 도시 인프라와 함께 누리는 친환경 웰빙(Well-being)도시
- 상기 지역조감도는 입주자의 이해를 돕기 위한 개략도이므로 실제와 차이가 있을 수 있습니다.
- 상기 계획은 관계기관의 인·허가 변경 및 사업여건 등에 따라 조정될 수 있습니다.
쾌속교통으로 더 가까운 서울
청정자연으로 더 쾌적한 생활

- 상기 교통망도는 입주자의 이해를 돕기 위한 개략도이므로 실제와 차이가 있을 수 있습니다.
- 상기 계획은 관계기관의 인·허가 변경 및 사업여건 등에 따라 조정될 수 있습니다.
생활을 풍요롭게 해주는
도시와 자연의 조화

- 상기 토지이용계획도는 사업추진과정에서 일부 조정될 수 있습니다.
햇살의 쉼터, 바람의정원
사람과 자연과 도시의 자연스러운 만남이 이루어지는 곳

총 615세대 중
사전청약
583세대
금회공급 174세대
금회공급 409세대
※ 사전청약 당첨 후 본청약시 동·호 배정은 본 청약 당첨자와 함께 주택청약업무수행기관 (신혼희망타운의 경우 LH공사)의 컴퓨터 프로그램에 의해 무작위 추첨하여 타입이 결정됩니다.
- 상기 단지배치도는 입주자의 이해를 돕기 위한 개략도이므로 실제와 차이가 있을 수 있습니다.
- 상기 계획은 관계기관의 인·허가 변경 및 사업여건 등에 따라 조정될 수 있습니다.
51A

59A

59B

- 상기 평면도는 입주자의 이해를 돕기 위한 개략도이므로 실제와 차이가 있을 수 있습니다.
- 상기 계획은 관계기관의 인·허가 변경 및 사업여건 등에 따라 조정될 수 있습니다.
