21년 4차 공공분양
남양주왕숙 B1
531호

- 상기 교통망도는 입주자의 이해를 돕기 위한 개략도이므로 실제와 차이가 있을 수 있습니다.
- 상기 계획은 관계기관의 인·허가 변경 및 사업여건 등에 따라 조정될 수 있습니다.

- 지구내 송전선로는 지중화예정이나, 관계기관 등의 인허가 변경 및 사업여건 등에 따라 조정될 수 있습니다.
- 상기 토지이용계획도는 사업추진과정에서 일부 조정될 수 있습니다.
- 학교 설립계획은 교육청과의 협의 결과에 따라 변경 또는 취소 될 수 있습니다.

총 560세대 중
사전청약
531세대
192세대
339세대
※ 사전청약 당첨 후 본청약시 동·호 배정은 본 청약 당첨자와 함께 주택청약업무수행기관(신혼희망타운의 경우 LH공사)의 컴퓨터 프로그램에 의해 무작위 추첨하여 타입이 결정됩니다.
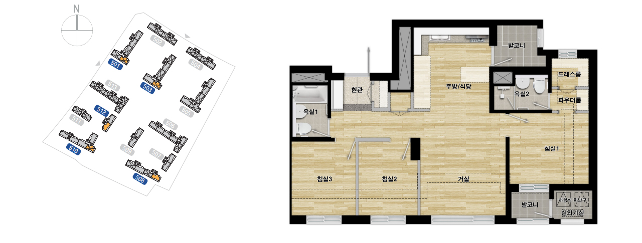
- 상기 단지배치도는 입주자의 이해를 돕기 위한 개략도이므로 실제와 차이가 있을 수 있습니다.
- 상기 계획은 관계기관의 인·허가 변경 및 사업여건 등에 따라 조정될 수 있습니다.
74

84A

84B

- 상기 평면도는 사전청약 신청자의 이해를 돕기위한 개략도이며, 전체 평면 중 전용면적 대표평면(확장형)을 게재한 것 입니다.
- 상기 평면도의 평면구성, 옵션적용, 실별확장 여부는 입주예정자 선호도 조사 등 설계 진행 및 인허가 과정에서 변경될 수 있습니다.
- 발코니 샤시 및 난간 설치는 동일 평형이라도 호수 별로 다르게 설계될 수 있습니다.
남양주왕숙 B17
473호

- 상기 교통망도는 입주자의 이해를 돕기 위한 개략도이므로 실제와 차이가 있을 수 있습니다.
- 상기 계획은 관계기관의 인·허가 변경 및 사업여건 등에 따라 조정될 수 있습니다.

- 지구내 송전선로는 지중화예정이나, 관계기관 등의 인허가 변경 및 사업여건 등에 따라 조정될 수 있습니다.
- 상기 토지이용계획도는 사업추진과정에서 일부 조정될 수 있습니다.
- 학교 설립계획은 교육청과의 협의 결과에 따라 변경 또는 취소 될 수 있습니다.

총 499세대 중
사전청약
473세대
123세대
350세대
※ 사전청약 당첨 후 본청약시 동·호 배정은 본 청약 당첨자와 함께 주택청약업무수행기관(신혼희망타운의 경우 LH공사)의 컴퓨터 프로그램에 의해 무작위 추첨하여 타입이 결정됩니다.
- 상기 단지배치도는 입주자의 이해를 돕기 위한 개략도이므로 실제와 차이가 있을 수 있습니다.
- 상기 계획은 관계기관의 인·허가 변경 및 사업여건 등에 따라 조정될 수 있습니다.
74

84A

84B

- 상기 평면도는 사전청약 신청자의 이해를 돕기위한 개략도이며, 전체 평면 중 전용면적 대표평면(확장형)을 게재한 것 입니다.
- 상기 평면도의 평면구성, 옵션적용, 실별확장 여부는 입주예정자 선호도 조사 등 설계 진행 및 인허가 과정에서 변경될 수 있습니다.
- 발코니 샤시 및 난간 설치는 동일 평형이라도 호수 별로 다르게 설계될 수 있습니다.
남양주왕숙 A1
597호

- 상기 교통망도는 입주자의 이해를 돕기 위한 개략도이므로 실제와 차이가 있을 수 있습니다.
- 상기 계획은 관계기관의 인·허가 변경 및 사업여건 등에 따라 조정될 수 있습니다.

- 지구내 송전선로는 지중화예정이나, 관계기관 등의 인허가 변경 및 사업여건 등에 따라 조정될 수 있습니다.
- 상기 토지이용계획도는 사업추진과정에서 일부 조정될 수 있습니다.
- 학교 설립계획은 교육청과의 협의 결과에 따라 변경 또는 취소 될 수 있습니다.

총 629세대 중
사전청약
597세대
597세대
※ 사전청약 당첨 후 본청약시 동·호 배정은 본 청약 당첨자와 함께 주택청약업무수행기관(신혼희망타운의 경우 LH공사)의 컴퓨터 프로그램에 의해 무작위 추첨하여 타입이 결정됩니다.
- 상기 단지배치도는 입주자의 이해를 돕기 위한 개략도이므로 실제와 차이가 있을 수 있습니다.
- 상기 계획은 관계기관의 인·허가 변경 및 사업여건 등에 따라 조정될 수 있습니다.
59A

59B

- 상기 평면도는 사전청약 신청자의 이해를 돕기위한 개략도이며, 전체 평면 중 전용면적 대표평면(확장형)을 게재한 것 입니다.
- 상기 평면도의 평면구성, 옵션적용, 실별확장 여부는 입주예정자 선호도 조사 등 설계 진행 및 인허가 과정에서 변경될 수 있습니다.
- 발코니 샤시 및 난간 설치는 동일 평형이라도 호수 별로 다르게 설계될 수 있습니다.
부천대장 A7
449호

- 상기 교통망도는 입주자의 이해를 돕기 위한 개략도이므로 실제와 차이가 있을 수 있습니다.
- 상기 계획은 관계기관의 인·허가 변경 및 사업여건 등에 따라 조정될 수 있습니다.

- 지구내 2개의 송전선로가 관통하고 있으며, 지구 내 관통구간은 향후 지중화 예정입니다
- 상기 토지이용계획도는 사업추진과정에서 일부 조정될 수 있습니다.
- 학교 설립계획은 교육청과의 협의 결과에 따라 변경 또는 취소 될 수 있습니다.

총 473세대 중
사전청약
449세대
449세대
※ 사전청약 당첨 후 본청약시 동·호 배정은 본 청약 당첨자와 함께 주택청약업무수행기관(신혼희망타운의 경우 LH공사)의 컴퓨터 프로그램에 의해 무작위 추첨하여 타입이 결정됩니다.
- 상기 단지배치도는 입주자의 이해를 돕기 위한 개략도이므로 실제와 차이가 있을 수 있습니다.
- 상기 계획은 관계기관의 인·허가 변경 및 사업여건 등에 따라 조정될 수 있습니다.
59A

59B

59C

- 상기 평면도는 사전청약 신청자의 이해를 돕기위한 개략도이며, 전체 평면 중 전용면적 대표평면(확장형)을 게재한 것 입니다.
- 상기 평면도의 평면구성, 옵션적용, 실별확장 여부는 입주예정자 선호도 조사 등 설계 진행 및 인허가 과정에서 변경될 수 있습니다.
- 발코니 샤시 및 난간 설치는 동일 평형이라도 호수 별로 다르게 설계될 수 있습니다.
부천대장 A8
372호

- 상기 교통망도는 입주자의 이해를 돕기 위한 개략도이므로 실제와 차이가 있을 수 있습니다.
- 상기 계획은 관계기관의 인·허가 변경 및 사업여건 등에 따라 조정될 수 있습니다.

- 지구내 2개의 송전선로가 관통하고 있으며, 지구 내 관통구간은 향후 지중화 예정입니다
- 상기 토지이용계획도는 사업추진과정에서 일부 조정될 수 있습니다.
- 학교 설립계획은 교육청과의 협의 결과에 따라 변경 또는 취소 될 수 있습니다.

총 392세대 중
사전청약
372세대
372세대
※ 사전청약 당첨 후 본청약시 동·호 배정은 본 청약 당첨자와 함께 주택청약업무수행기관(신혼희망타운의 경우 LH공사)의 컴퓨터 프로그램에 의해 무작위 추첨하여 타입이 결정됩니다.
- 상기 단지배치도는 입주자의 이해를 돕기 위한 개략도이므로 실제와 차이가 있을 수 있습니다.
- 상기 계획은 관계기관의 인·허가 변경 및 사업여건 등에 따라 조정될 수 있습니다.
59A

59B

59C

- 상기 평면도는 사전청약 신청자의 이해를 돕기위한 개략도이며, 전체 평면 중 전용면적 대표평면(확장형)을 게재한 것 입니다.
- 상기 평면도의 평면구성, 옵션적용, 실별확장 여부는 입주예정자 선호도 조사 등 설계 진행 및 인허가 과정에서 변경될 수 있습니다.
- 발코니 샤시 및 난간 설치는 동일 평형이라도 호수 별로 다르게 설계될 수 있습니다.
고양창릉 S5
718호

- 상기 교통망도는 입주자의 이해를 돕기 위한 개략도이므로 실제와 차이가 있을 수 있습니다.
- 상기 계획은 관계기관의 인·허가 변경 및 사업여건 등에 따라 조정될 수 있습니다.

- 지구 내 2개의 고압선로가 관통하고 있으며, 지구 내 관통구간은 향후 지중화 예정으로 관계기관 등의 인허가 변경 및 사업여건 등에 따라 지중화 노선 등이 조정될 수 있습니다.
- 상기 토지이용계획도는 사업추진과정에서 일부 조정될 수 있습니다.
- 학교 설립계획은 교육청과의 협의 결과에 따라 변경 또는 취소 될 수 있습니다.

총 759세대 중
사전청약
718세대
236세대
304세대
100세대
78세대
※ 사전청약 당첨 후 본청약시 동·호 배정은 본 청약 당첨자와 함께 주택청약업무수행기관(신혼희망타운의 경우 LH공사)의 컴퓨터 프로그램에 의해 무작위 추첨하여 타입이 결정됩니다.
- 상기 단지배치도는 입주자의 이해를 돕기 위한 개략도이므로 실제와 차이가 있을 수 있습니다.
- 상기 계획은 관계기관의 인·허가 변경 및 사업여건 등에 따라 조정될 수 있습니다.
51A

51B

59A

59B

74

84A

84B

- 상기 평면도는 사전청약 신청자의 이해를 돕기위한 개략도이며, 전체 평면 중 전용면적 대표평면(확장형)을 게재한 것 입니다.
- 상기 평면도의 평면구성, 옵션적용, 실별확장 여부는 입주예정자 선호도 조사 등 설계 진행 및 인허가 과정에서 변경될 수 있습니다.
- 발코니 샤시 및 난간 설치는 동일 평형이라도 호수 별로 다르게 설계될 수 있습니다.
고양창릉 S6
407호

- 상기 교통망도는 입주자의 이해를 돕기 위한 개략도이므로 실제와 차이가 있을 수 있습니다.
- 상기 계획은 관계기관의 인·허가 변경 및 사업여건 등에 따라 조정될 수 있습니다.

- 지구 내 2개의 고압선로가 관통하고 있으며, 지구 내 관통구간은 향후 지중화 예정으로 관계기관 등의 인허가 변경 및 사업여건 등에 따라 지중화 노선 등이 조정될 수 있습니다.
- 상기 토지이용계획도는 사업추진과정에서 일부 조정될 수 있습니다.
- 학교 설립계획은 교육청과의 협의 결과에 따라 변경 또는 취소 될 수 있습니다.

총 430세대 중
사전청약
407세대
306세대
101세대
※ 사전청약 당첨 후 본청약시 동·호 배정은 본 청약 당첨자와 함께 주택청약업무수행기관(신혼희망타운의 경우 LH공사)의 컴퓨터 프로그램에 의해 무작위 추첨하여 타입이 결정됩니다.
- 상기 단지배치도는 입주자의 이해를 돕기 위한 개략도이므로 실제와 차이가 있을 수 있습니다.
- 상기 계획은 관계기관의 인·허가 변경 및 사업여건 등에 따라 조정될 수 있습니다.
59A

59B

59C

59D

74A

74B

74C

- 상기 평면도는 사전청약 신청자의 이해를 돕기위한 개략도이며, 전체 평면 중 전용면적 대표평면(확장형)을 게재한 것 입니다.
- 상기 평면도의 평면구성, 옵션적용, 실별확장 여부는 입주예정자 선호도 조사 등 설계 진행 및 인허가 과정에서 변경될 수 있습니다.
- 발코니 샤시 및 난간 설치는 동일 평형이라도 호수 별로 다르게 설계될 수 있습니다.
시흥거모 A10
292호

- 상기 교통망도는 입주자의 이해를 돕기 위한 개략도이므로 실제와 차이가 있을 수 있습니다.
- 상기 계획은 관계기관의 인·허가 변경 및 사업여건 등에 따라 조정될 수 있습니다.

- 상기 토지이용계획도는 사업추진과정에서 일부 조정될 수 있습니다.
- 학교 설립계획은 교육청과의 협의 결과에 따라 변경 또는 취소 될 수 있습니다.

총 308세대 중
사전청약
292세대
56세대
236세대
※ 사전청약 당첨 후 본청약시 동·호 배정은 본 청약 당첨자와 함께 주택청약업무수행기관(신혼희망타운의 경우 LH공사)의 컴퓨터 프로그램에 의해 무작위 추첨하여 타입이 결정됩니다.
- 상기 단지배치도는 입주자의 이해를 돕기 위한 개략도이므로 실제와 차이가 있을 수 있습니다.
- 상기 계획은 관계기관의 인·허가 변경 및 사업여건 등에 따라 조정될 수 있습니다.
51

59A

59B

- 상기 평면도는 사전청약 신청자의 이해를 돕기위한 개략도이며, 전체 평면 중 전용면적 대표평면(확장형)을 게재한 것 입니다.
- 상기 평면도의 평면구성, 옵션적용, 실별확장 여부는 입주예정자 선호도 조사 등 설계 진행 및 인허가 과정에서 변경될 수 있습니다.
- 발코니 샤시 및 난간 설치는 동일 평형이라도 호수 별로 다르게 설계될 수 있습니다.
시흥거모 S1
284호

- 상기 교통망도는 입주자의 이해를 돕기 위한 개략도이므로 실제와 차이가 있을 수 있습니다.
- 상기 계획은 관계기관의 인·허가 변경 및 사업여건 등에 따라 조정될 수 있습니다.

- 상기 토지이용계획도는 사업추진과정에서 일부 조정될 수 있습니다.
- 학교 설립계획은 교육청과의 협의 결과에 따라 변경 또는 취소 될 수 있습니다.

총 300세대 중
사전청약
284세대
85세대
199세대
※ 사전청약 당첨 후 본청약시 동·호 배정은 본 청약 당첨자와 함께 주택청약업무수행기관(신혼희망타운의 경우 LH공사)의 컴퓨터 프로그램에 의해 무작위 추첨하여 타입이 결정됩니다.
- 상기 단지배치도는 입주자의 이해를 돕기 위한 개략도이므로 실제와 차이가 있을 수 있습니다.
- 상기 계획은 관계기관의 인·허가 변경 및 사업여건 등에 따라 조정될 수 있습니다.
59A

59B

84

- 상기 평면도는 사전청약 신청자의 이해를 돕기위한 개략도이며, 전체 평면 중 전용면적 대표평면(확장형)을 게재한 것 입니다.
- 상기 평면도의 평면구성, 옵션적용, 실별확장 여부는 입주예정자 선호도 조사 등 설계 진행 및 인허가 과정에서 변경될 수 있습니다.
- 발코니 샤시 및 난간 설치는 동일 평형이라도 호수 별로 다르게 설계될 수 있습니다.
안산장상 A9
638호

- 상기 교통망도는 입주자의 이해를 돕기 위한 개략도이므로 실제와 차이가 있을 수 있습니다.
- 상기 계획은 관계기관의 인·허가 변경 및 사업여건 등에 따라 조정될 수 있습니다.

- 지구내 송전선로(4개 노선)는 지중화 예정이나, 관계기관 등의 인허가 변경 및 사업여건 등에 따라 조정될 수 있습니다.
- 상기 토지이용계획도는 사업추진과정에서 일부 조정될 수 있습니다.
- 학교 설립계획은 교육청과의 협의 결과에 따라 변경 또는 취소 될 수 있습니다.

총 673세대 중
사전청약
638세대
622세대
6세대
10세대
※ 사전청약 당첨 후 본청약시 동·호 배정은 본 청약 당첨자와 함께 주택청약업무수행기관(신혼희망타운의 경우 LH공사)의 컴퓨터 프로그램에 의해 무작위 추첨하여 타입이 결정됩니다.
- 상기 단지배치도는 입주자의 이해를 돕기 위한 개략도이므로 실제와 차이가 있을 수 있습니다.
- 상기 계획은 관계기관의 인·허가 변경 및 사업여건 등에 따라 조정될 수 있습니다.
59A

59B

59C

59D

59T

- 상기 평면도는 사전청약 신청자의 이해를 돕기위한 개략도이며, 전체 평면 중 전용면적 대표평면(확장형)을 게재한 것 입니다.
- 상기 평면도의 평면구성, 옵션적용, 실별확장 여부는 입주예정자 선호도 조사 등 설계 진행 및 인허가 과정에서 변경될 수 있습니다.
- 발코니 샤시 및 난간 설치는 동일 평형이라도 호수 별로 다르게 설계될 수 있습니다.
- 59D 타입의 오픈 발코니 설치 위치는 세대별로 상이 할 수 있습니다.
안산신길2 A2,4
449호

- 상기 교통망도는 입주자의 이해를 돕기 위한 개략도이므로 실제와 차이가 있을 수 있습니다.
- 상기 계획은 관계기관의 인·허가 변경 및 사업여건 등에 따라 조정될 수 있습니다.

- 상기 토지이용계획도는 사업추진과정에서 일부 조정될 수 있습니다.
- 학교 설립계획은 교육청과의 협의 결과에 따라 변경 또는 취소 될 수 있습니다.

총 474세대 중
사전청약
449세대
425세대
24세대
※ A2, 4블록은 하나의 주택단지로, 청약 시 블록의 위치는 선택할 수 없습니다.
※ 사전청약 당첨 후 본청약시 동·호 배정은 본 청약 당첨자와 함께 주택청약업무수행기관(신혼희망타운의 경우 LH공사)의 컴퓨터 프로그램에 의해 무작위 추첨하여 타입이 결정됩니다.
- 상기 단지배치도는 입주자의 이해를 돕기 위한 개략도이므로 실제와 차이가 있을 수 있습니다.
- 상기 계획은 관계기관의 인·허가 변경 및 사업여건 등에 따라 조정될 수 있습니다.
59A

59B

59C

59[복층]

- 상기 평면도는 사전청약 신청자의 이해를 돕기위한 개략도이며, 전체 평면 중 전용면적 대표평면(확장형)을 게재한 것 입니다.
- 상기 평면도의 평면구성, 옵션적용, 실별확장 여부는 입주예정자 선호도 조사 등 설계 진행 및 인허가 과정에서 변경될 수 있습니다.
- 발코니 샤시 및 난간 설치는 동일 평형이라도 호수 별로 다르게 설계될 수 있습니다.
안산신길2 B1
365호

- 상기 교통망도는 입주자의 이해를 돕기 위한 개략도이므로 실제와 차이가 있을 수 있습니다.
- 상기 계획은 관계기관의 인·허가 변경 및 사업여건 등에 따라 조정될 수 있습니다.

- 상기 토지이용계획도는 사업추진과정에서 일부 조정될 수 있습니다.
- 학교 설립계획은 교육청과의 협의 결과에 따라 변경 또는 취소 될 수 있습니다.

총 387세대 중
사전청약
365세대
77세대
267세대
7세대
※ 사전청약 당첨 후 본청약시 동·호 배정은 본 청약 당첨자와 함께 주택청약업무수행기관(신혼희망타운의 경우 LH공사)의 컴퓨터 프로그램에 의해 무작위 추첨하여 타입이 결정됩니다.
- 상기 단지배치도는 입주자의 이해를 돕기 위한 개략도이므로 실제와 차이가 있을 수 있습니다.
- 상기 계획은 관계기관의 인·허가 변경 및 사업여건 등에 따라 조정될 수 있습니다.
74

84A

84B

84C




84[복층]

- 상기 평면도는 사전청약 신청자의 이해를 돕기위한 개략도이며, 전체 평면 중 전용면적 대표평면(확장형)을 게재한 것 입니다.
- 상기 평면도의 평면구성, 옵션적용, 실별확장 여부는 입주예정자 선호도 조사 등 설계 진행 및 인허가 과정에서 변경될 수 있습니다.
- 발코니 샤시 및 난간 설치는 동일 평형이라도 호수 별로 다르게 설계될 수 있습니다.
고양장항 S1
825호

- 상기 교통망도는 입주자의 이해를 돕기 위한 개략도이므로 실제와 차이가 있을 수 있습니다.
- 상기 계획은 관계기관의 인·허가 변경 및 사업여건 등에 따라 조정될 수 있습니다.

- 상기 토지이용계획도는 사업추진과정에서 일부 조정될 수 있습니다.
- 학교 설립계획은 교육청과의 협의 결과에 따라 변경 또는 취소 될 수 있습니다.

총 869세대 중
사전청약
825세대
95세대
711세대
19세대
※ 사전청약 당첨 후 본청약시 동·호 배정은 본 청약 당첨자와 함께 주택청약업무수행기관(신혼희망타운의 경우 LH공사)의 컴퓨터 프로그램에 의해 무작위 추첨하여 타입이 결정됩니다.
- 상기 단지배치도는 입주자의 이해를 돕기 위한 개략도이므로 실제와 차이가 있을 수 있습니다.
- 상기 계획은 관계기관의 인·허가 변경 및 사업여건 등에 따라 조정될 수 있습니다.
- 일부 동 상·하부에는 주민공동시설 및 근린생활시설이 설치 될 예정이며, 설치 위치 및 규모는 변경될 수 있습니다.
59

84A

84B

84C

84D

84T[복층]

- 상기 평면도는 사전청약 신청자의 이해를 돕기위한 개략도이며, 전체 평면 중 전용면적 대표평면(확장형)을 게재한 것 입니다.
- 상기 평면도의 평면구성, 옵션적용, 실별확장 여부는 입주예정자 선호도 조사 등 설계 진행 및 인허가 과정에서 변경될 수 있습니다.
- 발코니 샤시 및 난간 설치는 동일 평형이라도 호수 별로 다르게 설계될 수 있습니다.
